Conoce de nuestros
Servicios
Tenemos un amplio portafolio de soluciones para ti.
Proyectos
Proyectos llave en mano. Desde la idea conceptual, pasando por el diseño, la ejecución de obra y la puesta en marcha.





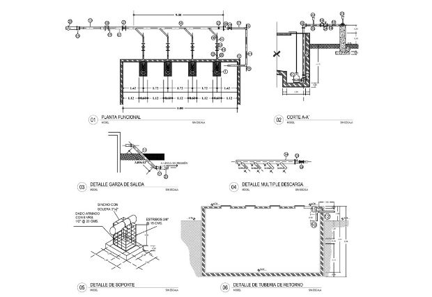
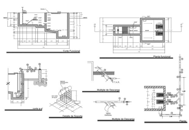
Expedientes técnicos
Elaboración de proyectos ejecutivos con diseño, memorias de cálculo, presupuestación, especificaciones y planos para conseguir la aprobación de recursos de inversión.





Asesoría
Estudios de eficiencia de energía con analizador de redes eléctricas, cálculos hidráulicos mediante software Epanet, auditorías de flujos mediante medición indirecta ultrasónica y diseño de automatización de procesos.





Construcción
Ejecución de las obras en tiempo, buscando eficientar los recursos y con la calidad solicitada por nuestros clientes.







Equipamiento
Venta e instalación de equipos de bombeo, arrancadores, sistemas fotovoltaicos, filtros, válvulas de control, telemetría.








Puesta en marcha
Apoyo y asesoría con nuestros técnicos especializados para la puesta en marcha de obras y equipos para su correcta operación.






